⏱️ 13 min read
Aerial view of residential apartments in Ahmedabad with text “What is BHK?” — explaining the meaning and types of BHK flats for homebuyers in 2025.

What is BHK? Meaning, Types, Sizes & Complete Home Buying Guide (2026)

Buying your first home or flat can be exciting — but also confusing. When you start searching to buy property in Ahmedabad , you’ll come across terms like 1 BHK, 2.5 BHK, or 3 BHK.
But what do they really mean? How big are they? Which one is right for you? And what other costs or documents should you be aware of before buying?

This 2025 guide explains everything you need to know. It covers the meaning of BHK, types, and sizes. It also helps you choose the right BHK based on your needs and the cost of living in Ahmedabad You will find important documents and hidden costs to watch for.

What Does BHK Mean?

Difference between RK and BHK flats showing 3D layouts — explains what is BHK, what is 1 BHK flat, and how RK (Room Kitchen) differs from BHK apartments.

BHK stands for Bedroom, Hall, and Kitchen.

It describes the basic layout of an apartment in India. For example:

  • 1 BHK = 1 Bedroom + 1 Hall + 1 Kitchen

  • 2 BHK = 2 Bedrooms + 1 Hall + 1 Kitchen

This term helps homebuyers quickly understand the number of rooms and estimate the size and price of a flat.

BHK classifications are used widely across India, the UAE, and other regions where apartments are measured by the number of living spaces.

Difference Between RK and BHK

Before BHK, there’s another term you’ll see in listings: RK which means Room Kitchen. An RK flat has just one room that serves as both a living and sleeping area, plus a small kitchen. There’s no separate bedroom.

Type Full Form Description Ideal For
1 RK Room + Kitchen Studio-style apartment Students, working professionals
1 BHK Bedroom + Hall + Kitchen Separate living and bedroom spaces Couples, small families
2 BHK 2 Bedrooms + Hall + Kitchen Extra room for kids or guests Small families
3 BHK 3 Bedrooms + Hall + Kitchen Spacious home for larger families Joint or extended families

What is a 1 BHK Flat?

1 BHK flat includes one bedroom, one hall, and one kitchen. The most affordable and space-efficient option in urban areas is available.

  • Average Size: 450–700 sq. ft.

  • Best For: Singles, couples, or small nuclear families

Pros:

  • Lower purchase price and maintenance

  • Easy to furnish and clean

  • Great for investment or rental income

Cons:

  • Limited space for growing families

  • May feel congested with more than 2 people

What is a 2 BHK Flat?

What is 2 BHK flat plan showing two bedrooms, one hall, one kitchen, and two bathrooms — a perfect choice for small families seeking comfort and value.

2 BHK flat offers two bedrooms, one hall, and one kitchen — a balanced choice for comfort and cost.

  • Average Size: 800–1200 sq. ft.

  • Ideal For: Families with one or two children

Pros:

  • More space for family and guests

  • Higher resale and rental value

  • Can accommodate a small home office

Cons:

  • Slightly higher maintenance

  • May cost 25–40% more than 1 BHK in the same area

What is a 2.5 BHK Flat?

What is 2.5 BHK flat layout showing two bedrooms, one small study or office room, one hall, and a kitchen — ideal for families with kids or professionals working from home.

2.5 BHK flat includes two bedrooms, one smaller additional room (the “.5”), one hall, and a kitchen. That extra half room is usually a study, pooja room, or compact office space.

  • Average Size: 950–1300 sq. ft.

  • Ideal For: Families with kids or professionals working from home

Why It’s Popular:

  • Perfect middle ground between 2 and 3 BHK

  • Offers flexibility without major cost jump

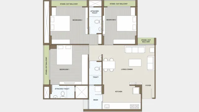
What is a 3 BHK Flat?

What is 3 BHK flat plan showing three bedrooms, large living and dining area, kitchen, and multiple bathrooms — best for joint or growing families.

3 BHK flat has three bedrooms, a hall, and a kitchen — offering maximum space and comfort.

  • Average Size: 1200–1600 sq. ft.

  • Ideal For: Joint families or buyers planning long-term living

Pros:

  • Spacious and versatile

  • Easier to rent out to premium tenants

  • Suitable for large or growing families

Cons:

  • Higher cost and maintenance

  • Utility expenses are greater

Standard Flat Sizes in India (BHK-Wise Comparison)

Flat Type Layout Description Standard Size (sq. ft.) Ideal For
1 RK Room + Kitchen 300–450 Singles, Students
1 BHK Bedroom + Hall + Kitchen 450–700 Couples
2 BHK 2 Bedrooms + Hall + Kitchen 800–1200 Small Families
2.5 BHK 2 Bedrooms + Study + Hall + Kitchen 950–1300 Families needing extra space
3 BHK 3 Bedrooms + Hall + Kitchen 1200–1600 Large Families

Tip: Always ask builders whether the mentioned area is carpet area, built-up area, or super built-up area as this significantly affects usable space.

Difference between 1 BHK, 2 BHK, and 3 BHK flats shown in 3D layouts, comparing size, price, space, comfort, and ideal buyers — helping homebuyers choose the right flat type.

Difference Between 1 BHK, 2 BHK, and 3 BHK Flats

When buying a home, one of the first decisions is choosing between 1 BHK, 2 BHK, or 3 BHK.
Each option offers a different level of space, comfort, and investment potential. Here’s a simple breakdown to help you understand which type fits your needs best.

 
Feature 1 BHK Flat 2 BHK Flat 3 BHK Flat
Full Form 1 Bedroom, Hall, Kitchen 2 Bedrooms, Hall, Kitchen 3 Bedrooms, Hall, Kitchen
Average Size 450 – 650 sq. ft. 750 – 1,100 sq. ft. 1,200 – 1,800 sq. ft.
Ideal For Singles, working professionals, or couples Small to medium families Large or joint families
Price Range Lowest — budget-friendly Moderate — value for money Highest — premium category
Maintenance Cost Low Moderate High
Space & Comfort Compact and limited Comfortable for 3–4 members Spacious and luxurious
Rental Demand High in metros and IT hubs Extremely high and stable Moderate but steady
Resale Value Moderate Excellent High, depending on location
Future Flexibility Limited Good for expansion or home office Extremely flexible and future-proof
Best For Investment Short-term rental income Balanced for living + ROI Long-term family stay and appreciation
Drawbacks Less storage, not future-proof Slightly higher EMI High purchase & maintenance cost
 
How to choose the perfect BHK for you and your family — real estate guide explaining how to pick between 1 BHK, 2 BHK, 2.5 BHK, and 3 BHK flats based on budget, family size, and lifestyle.

How to Choose the Perfect BHK for You and Your Family

Choosing the right BHK (Bedroom, Hall, Kitchen) isn’t just about how many rooms you need — it’s about finding the right balance between your family’s size, income, lifestyle, and long-term goals.

 

1. Family Size and Lifestyle

Your family structure plays the biggest role in choosing the right BHK.

  • Single or Couple: A 1 BHK flat offers the perfect balance of affordability and maintenance ease.
  • Small Family (2–3 Members): Go for a 2 BHK that gives you an extra room for kids or guests.
  • Growing or Joint Family: Choose a 2.5 or 3 BHK, as the extra room can serve as a study, home office, or parent’s room.

If you plan to expand your family in the next few years, it’s smarter to buy one size bigger now to avoid future relocation costs.

2. Monthly Income and Budget

Your income directly impacts what BHK you can comfortably afford. The cost of living in Ahmedabad is highly dependent on family size, regular expenses and all. A common rule is that your EMI should not exceed 30–35% of your monthly income.

For example:

  • Income ₹60,000/month → 1 BHK or budget flat
  • Income ₹1 lakh/month → 2 BHK or mid-segment project
  • Income ₹1.5 lakh+/month → 3 BHK or premium property

Also, keep funds aside for registration fees, GST, and furnishing — these can add 7–15% extra to the total price.

3. Location and Commute

Location can change your entire experience. A smaller 1 BHK in a prime city area may cost the same as a larger 2 BHK on the outskirts.

  • If you work in the city: Choose convenience, even if space is smaller.
  • If you work remotely or have your own vehicle: Choose a spacious flat in a developing suburb.

Proximity to offices, schools, hospitals, and public transport adds both comfort and long-term value.

4. Future Needs and Flexibility

  • Think 5–10 years ahead.
  • Will your parents move in? Planning for kids? Need a home office?
  • If yes, choose a 2.5 or 3 BHK. The extra room gives flexibility for changing needs.

A slightly higher investment today can save future renovation or relocation expenses.

5. ROI (Return on Investment) and Resale Value

Even if you’re buying to live, it’s smart to consider resale and rental potential.

BHK Type Rental Demand Resale Potential Ideal Buyer
1 BHK High in metros Moderate Singles, professionals
2 BHK Extremely High Excellent Families, investors
3 BHK Moderate High Long-term buyers, large families

A 2 BHK generally offers the best ROI — it’s affordable, easy to rent, and resells faster in most Indian cities.

6. Layout and Amenities

Don’t go by size alone — check how the space is designed.

Look for:

  • Proper carpet area (usable space)
  • Good ventilation and sunlight
  • Separate utility area and storage
  • Essential amenities like lift, parking, power backup, and security

A 950 sq. ft. well-planned 2 BHK can feel more spacious than a poorly designed 1100 sq. ft. flat.

7. Long-Term Value and Maintenance

Choose a BHK that fits your maintenance capacity. A larger flat means higher cleaning, electricity, and maintenance costs.

  • If you travel often or live alone, a 1 or 2 BHK makes sense.
  • If you have a growing family and plan to stay long-term, invest in a 3 BHK — it’s more future-proof.

Our Projects

Upcoming

Upcoming @ The Universe

📍 S.P. Ring Road, Hanspura

🏠 3 BHK Apartment

Explore
Under Construction

Laxmi One O1

📍 Bhadaj | Science City

🏠 3 BHK Apartment

Explore
Newly Launched

Laxmi Courtyard

📍 Narol

🏠 2 BHK Apartment

Explore
Under Construction

Laxmi Eternia

📍 Narol

🏠 3 BHK Apartment

Explore
Ready To Move In

Laxmi Ashiyana

📍 Narol

🏠 2 BHK Modern Living Spaces

Explore
Ready To Move In

Laxmi Skycity

📍 Naroda

🏠 3 & 4 BHK Apartment

Explore
Ready To Move In

Laxmi Nivas

📍 Narol

🏠 1 & 2 BHK Affordable Homes

Explore
Upcoming

Upcoming @ Sanathal

📍 Sanathal

🏠 3 BHK Apartment

Explore

How to Choose the Perfect BHK for You and Your Family

What is BHK in real estate ?

Bedroom, Hall, and Kitchen, or BHK for short, is a term used to describe the layout of an flat; for example, 2 BHK indicates two bedrooms, one hall, and one kitchen.

One bedroom, one hall, and one kitchen make up a one-bedroom apartment, which is perfect for singles or couples looking for low maintenance and affordability.

Two bedrooms, a kitchen, a hallway, and a smaller space for study, guest, or office use are all included in a 2.5 BHK flat.

While a 2 BHK offers more space, comfort, and a higher resale and rental value, a 1 BHK is small and more affordable.

While 3 BHK flats offer more space and privacy for large or joint families, 2 BHK flats are ideal for small families.

 
  • 450–650 square feet for a one-bedroom apartment.
  • 750–1,100 square feet for a two-bedroom apartment
  • 1,200–1,800 square feet for a three-bedroom apartment.

For small families, a two-bedroom flat or flat is ideal because it is roomy, cozy, reasonably priced, and has strong resale value.

The best return on investment and rental demand are found in 2 BHK apartments, which makes them perfect for both homebuyers and investors.

Yes, provided there is room and permission is obtained. But it’s usually wiser to purchase a two-bedroom apartment directly.

Stamp duty, registration, GST, parking, and maintenance are additional expenses that raise the overall cost by roughly 7% to 15%

 

Before making a purchase, review the RERA certificate, NOC, occupancy certificate, sale deed, and title deed.

 
  • Carpet area: Useful space within walls
  • Built-up: walls, carpet, and balcony
  • Super built-up: shared areas plus built-up

Download Brochure

Apply For Job

Inquire Now